當前位置:網站首頁
> 產品展示
WNS系列燃油燃氣承壓熱水鍋爐
1、煙氣流程采用三回程全濕背型式,采用波紋爐膽,輻射受熱面積大且能消除爐膽應力,鍋爐使用壽命長;
2、煙管采用螺紋煙管,優化傳熱;
3、獨特的實際,溫度梯度小,鍋爐設備應力小;
4、配置全進口的著名品牌燃燒器、火力控制器,具有火焰檢測、自動吹掃、熄火保護;
5、控制器,根據不同用戶實現個性化配置:可選用先進觸摸屏+PLC控制器,數據監控系統,具有定時控制工作記錄,檢漏報警,壓力保護,溫度控制,缺水保護功能;并可根據要求設備控制密碼,可預留上位機通訊接口;
6、獨特的保溫設計,超低的外表溫度;
7、精美的造型設計,外觀時尚大方;
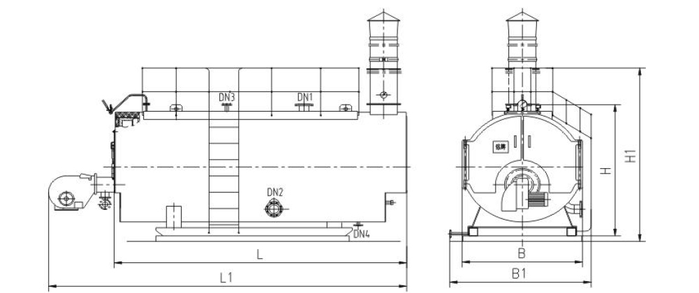
- 設計圖展示
- 相關參數表


上一篇:SZS系列燃油燃氣蒸汽鍋爐
下一篇:常壓單體系列鑄鋁冷凝(模塊)鍋爐