當前位置:網站首頁
> 產品展示
CWNS系列燃油燃氣常壓熱水機組
※ 鍋爐本體采用開式結構,常壓運行安全可靠。
※ 不占空間,可裝樓宇內部、地下室或樓頂,節約大量建設用地。
※ 操作簡單,全自動控制無須專人值守。
※ 采用水、火、熱管結合的獨特構造,增大受熱面積,降低排煙溫度,提高熱效率。
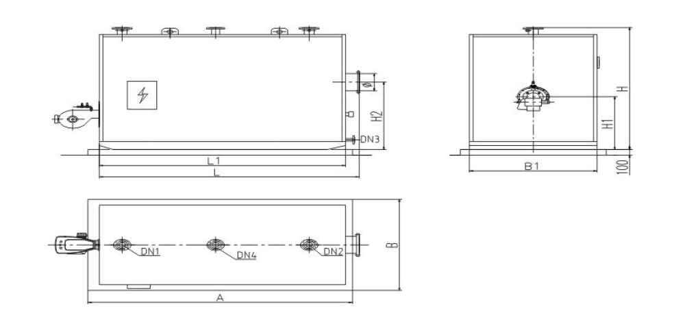
- 設計圖展示
- 相關參數表

